DJ(LDJ)系列单支点机架
DXJ系列单支点机架
XD系列单支点机架
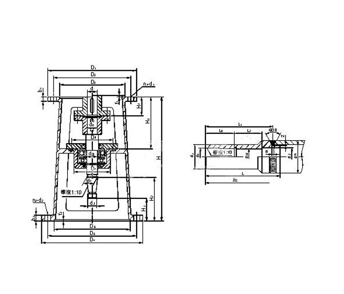
单支点机架
JD(LJD)系列单支点机架
JXD系列单支点机架
JXLD,JBLD系列单支点机架
TB系列单支点机架
首页
电话
留言
地址